Independence – Custom Two Story In Private Wooded Setting
$330,000 -Lot Price
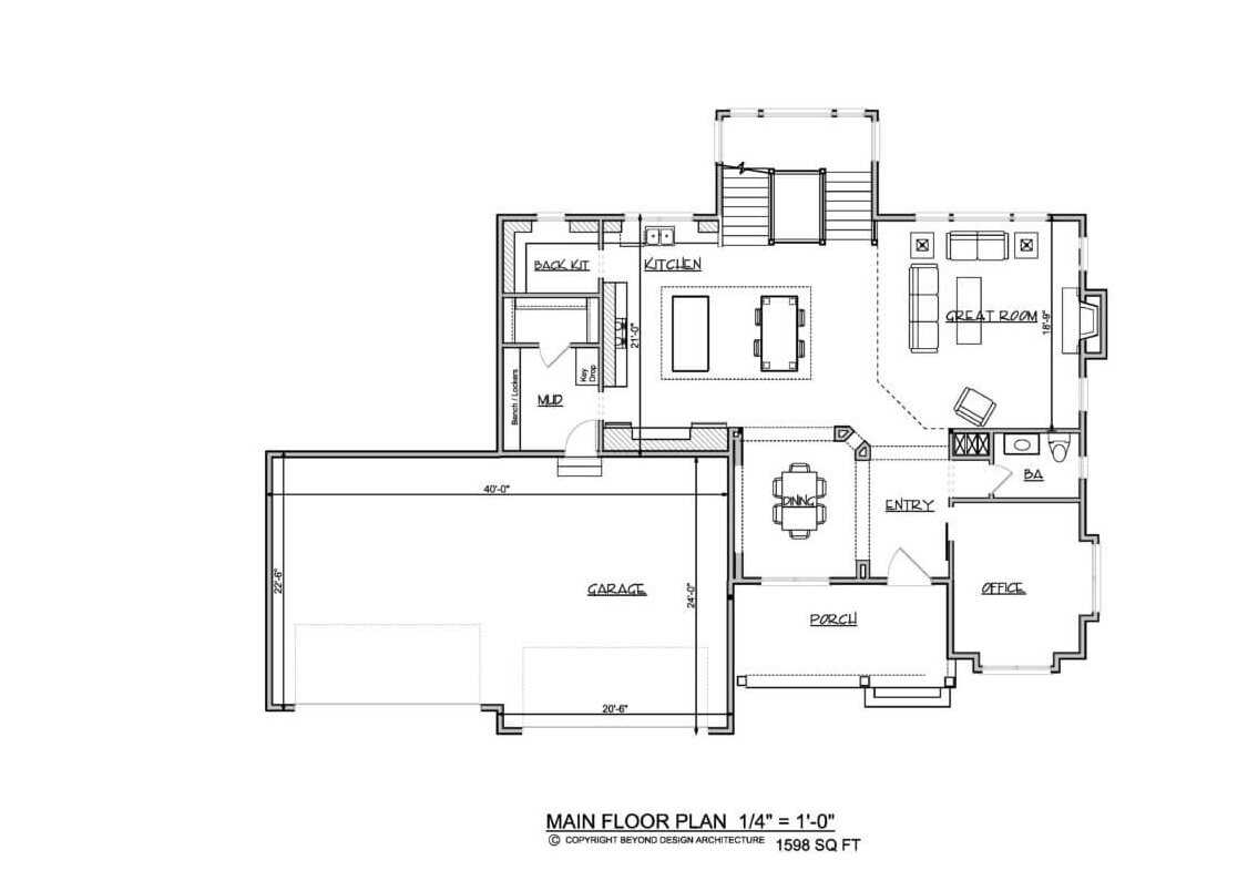
With its extensive use of large windows and a vaulted rear stairwell the main floor brings in lots of natural light and beautiful, private wooded views to the rear. This unique design features double islands in the kitchen, a generous pantry and a semi-formal dining to the front of the house. The unique, rear stair location allows for easy access to the backyard from the walkout lower stair landing.
The upper floor features a vaulted stair loft and a staircase open down to the basement. The master suite is complete with his and hers vanities and a walk through laundry room. Generous kids bedrooms with walk in closets provide plenty of space for growing families. The Jack & Jill bath with separate vanities eliminates any arguments over who is using too much sink space! The private bath is great for guests or kids wanting their own bathroom space.
The lower level features plenty of room for movies, entertaining and games as well as a generous mechanical room. The extra bedroom and bath are great for out of town guests.
Get In Touch
Floor Plan

DIRECTIONS TO HILLTOP PRAIRIE